Sinnai: Nuovo Trivano bilivelli con giardino

In vendita
Villa Bifamiliare
0 €
Descrizione
Abbiamo il piacere di proporre in vendita in una riservata zona residenziale di Sinnai una villa bilivelli con cortile.

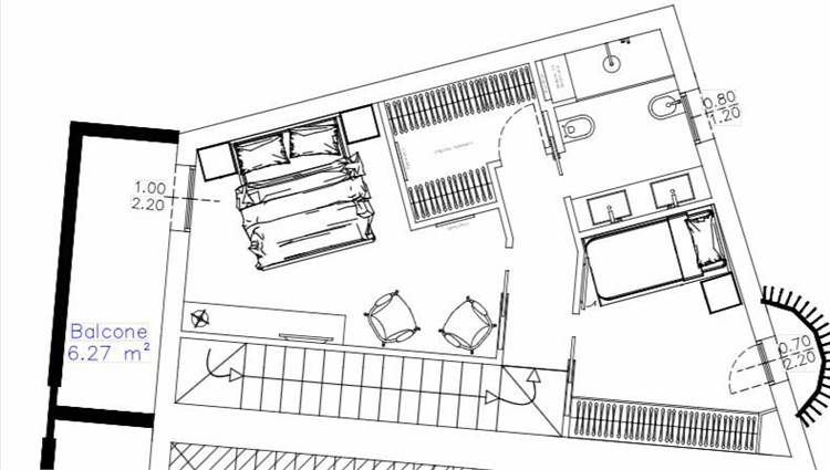
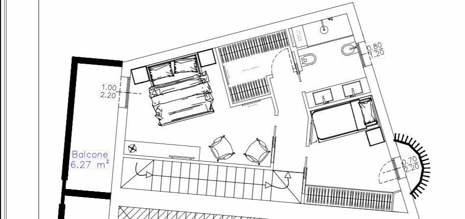
La villa di tipologia trivano sarà composta da:
– Soggiorno con zona angolo cottura a vista
– Camera matrimoniale
– Camera singola
– 2 Bagno
– Ampio Cortile su due lati
– Posto auto

La villa sarà consegnata pronta da arredare con tutte le rifiniture di alta qualità.
Ampio scelta di capitolato per personalizzarla al meglio.

Nuova costruzione dal design moderno adatto a giovani coppie o famiglie che cercano qualità, spazi e indipendenza.

Acquisto ideale per mutuo green.

La costruzione è a buon punto, verrà ultimata dopo l estate 2026.

Contattaci per avere più informazioni e fissare una visita di persona.


Caratteristiche principali
Codice:
V000108
Categoria:
Villa Bifamiliare
Locali:
4
Mq:
90
Classe energetica:
A++
Stato Immobile:
Nuovo
Grado:
Signorile
Posizione:
Periferia
Panorama:
Vista Monti
Raffrescamento:
Split
Infissi:
PVC Doppio Vetro
Serramenti:
Nuovo
Accessori
Aria Condizionata
Mappa
via roccheddas sinnai -
Richiedi informazioni
Invia
Cookie preference